Wohngebiet Hirmersbühl

Wohngebiet Hirmersbühl

Schaffen von wunderbar gelegenem
Wohnraum für ortsansässige Familien

  • Realisierung: 2018
  • Umfang: 2,7 ha
  • Auftraggeber: Gemeinde Waldthurn, Lkr. Neustadt a. d. W.

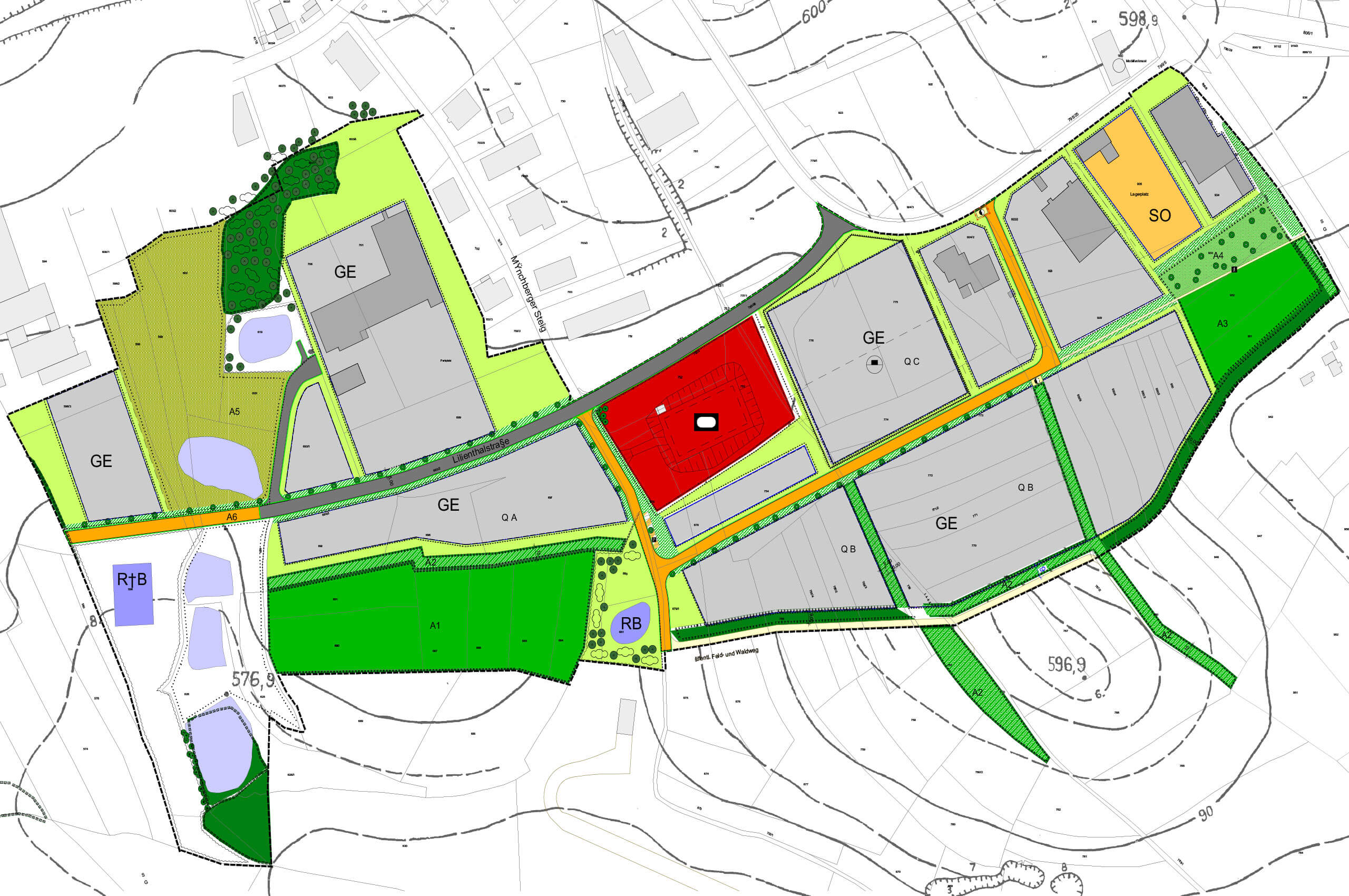
Gewerbegebiet Lilienthalstraße

Gewerbegebiet Lilienthalstraße

Schaffen von Gewerbeflächen
für ortsansässige Firmen

  • Realisierung: 2009
  • Umfang: 27,8 ha
  • Auftraggeber: Stadt Helmbrechts, Lkr.Hof

FN-Plan Naila

FN-Plan Naila

Zukunftsvision einer Stadt

  • Realisierung: 2010
  • Umfang: 37 qkm
  • Auftraggeber: Stadt Naila, Lkr. Hof